- Latest Update
Update : As on 25-02-2025
Update : As on 22-01-2025
EXECUTING OF CONVEYANCE DEED / REGISTRATION OF ALLOTTED DWELLING UNIT AT GURGAON 95, PUNE WAGHOLI AND MOHALI–114 PROJECTS
Allottees are requested to execute the conveyance deed of their allotted dwelling unit of above mentioned projects as early as possible at least by March 2025 and fwd a copy of same to HQ AWHO to update its records, failing which a penalty will be imposed. Please ignore this notice if the same has already been done.Update : As on 05-01-2025
Mohali sect-114: 3BHK is available for booking
Update : As on 19-04-2024
REGISTRATION OF DUS IN MOHALI SEC-114 PROJECT
The project of Mohali Sec-114 was completed in 2017. The registration of DU is being carried out since the project has been completed and handed over to the allottees. It is noted that even after lapse of 7 to 8 years, a number of allottees have not got their DUs registered.
All allottees who have not got their Dwelling Unit registered till now are requested to execute the Conveyance Deed of their allotted Dwelling Units latest by 30 Jun 2024, failing which a sum of Rs 11,800/- including GST will be levied from them.
Update : As on 03-03-2023
REDUCTION IN STAMP DUTY AND REGISTRATION CHARGES BY GOVT OF PUNJAB
GOVT. OF PUNJAB NOTIFICATION DATED 28 FEB 2023
Update : As on 13-02-2023
WEB UPDATE : AWHO SECTOR-114, MOHALI
Update : As on 26-08-2022
DELAY IN TAKING POSSESSION AND REGISTRATION OF THE DWELLING UNIT (DU) MOHALI (SECT-114)
Update : As on 24-08-2022
TOUR NOTES OF SITE VISIT BY MD AWHO TO AWHO SEC 114, MOHALI ON 01-02 AUG 2022
Update : As on 24-02-2022
MOHALI SEC-114 : OPENING OF 'S' TOWER FOR PMF & CIVILIANS ALSO
Update : As on 31-01-2022
OPENING OF ‘S’ TOWER FOR SALE OF DWELLING UNITS IN AWHO HARBHAJAN VIHAR SECTOR 114, MOHALI PROJECT
Update : As on 29-10-2021
OPENING OF ‘T’ TOWER FOR SALE OF DWELLING UNITS IN AWHO HARBHAJAN VIHAR SECTOR 114, MOHALI PROJECT
Update : As on 13-08-2021
REVISION OF REGISTRATION / BOOKING AMOUNT AND WITHDRAWAL PENALTY IN MOHALI (SECT-114) PROJECT
Update : As on 25-02-2021
REDUCTION IN THE COST OF UNSOLD DUs IN MOHALI (SECT-114) PROJ
Update : Project as on 28-01-2021
MOHALI SEC-114 : INVITATION OF BIDS
Update : Project as on 16-10-2020
Update : Project as on 15-05-2020
HANDING/TAKING OVER SCHEDULE OF AWHO PROJECT MOHALI SECT-114
Further to our update dated 07 Apr 2020 and extension of countrywide lockdown by Govt of India. Fresh dates to recommence handing over of DUs is postponed to 08 Jun 2020. All allottees however, will have to make the complete payment before take over.
Update : Project as on 07-04-2020
HANDING/TAKING OVER SCHEDULE OF AWHO PROJECT MOHALI SECT-114
Due to COVID-19 outbreak and subsequent nationwide lockdown, Handing/Taking over of DUs shall re-commence wef 15 May 2020. This will be further reviewed in 1st week of May 2020 based on situation prevailing at that time.
Update : Harbhajan Vihar (as on 14-02-2020)
DISPOSAL OF UNSOLD DWELLING UNITS THROUGH BROKERS
1. AWHO housing project at Mohali (Sect-114) is located about 16 Kms from Sector-17 Chandigarh, 24 Kms from Chandigarh Railway Station and 24 Kms from Chandigarh Airport. It is only 11 Kms from the proposed aerocity. AWHO has constructed 1048 Dwelling Units (DUs) in 22 towers in 22.46 acres of land. The project is complete and handing over of dwelling units is in progress. Over 670 allottees have taken possession of their DUs.
2. As on date a few dwelling units are still available in the project for allotment on first-come-first-serve basis. The higher management of AWHO has now decided to reduce the sale price of DUs in Mohali (Sect-114) project as under with imdt effect:-
(a) Cost of DU for Def Pers (Army, Navy, Air Force, Coast Guard) including Assam Rifles, GREF, TA, Para Mil Forces and Civilian paid from Defence Estimate has been fixed to @ Rs 2776/- per sq ft.
(b) Cost of DUs for Civilians has been fixed to Rs 2950/- per sq ft.
3. For information of the environment please.Latest Update : Harbhajan Vihar (as on 15-07-19)
Update : Harbhajan Vihar (as on 06-06-19)
REDUCTION IN THE COST OF DWELLING UNITS
1. The higher Management of AWHO has decided to reduce the sale price of DUs in Mohali (Sect-114) project from Rs 3200/- per sq ft to Rs 3050/- per sq ft with immediate effect. The revised rates will be applicable for Defence Personnel (serving/ retired/ widows & parents of un-married battle fatal casualty pers) only. However, the sale price for other applicants will remain Rs 3200/- per sq ft.
2. The revised rates will be applicable for a limited period. Hence prospective buyers (Defence Personnel) are requested to apply for a Dwelling Unit in Mohali (Sect-114) project as early as possible to avail the benefit of discounted rates.
3. For information of the environment please.Update : Harbhajan Vihar (as on 06-05-19)
Election for RWA at Sec 114, Harbhajan Vihar, Mohali
Update : Harbhajan Vihar (as on 07-06-18)
SALE OF 100 DWELLING UNITS IN AWHO HOUSING PROJECT AT MOHALI (SECTOR-114)
Update : Harbhajan Vihar (as on 01-05-18)
NOTICE
WITHDRAWAL FROM MOHALI (SECT-114) PROJECT AFTER ISSUE OF HANDING/ TAKING OVER INSTRUCTIONS LETTERS
1. The Mohali (Sect-114) project has been completed and handing/ taking over of DUs is presently in progress.
2. Handing/ taking over instrs for 15 Blocks have already been issued and 307 DUs have also been taken over till date. Handing/ taking over instrs letters for the remaining DUs (A, B, F, P & Q Blocks) are also in process.
3. In view of this, it has been decided by the Management that henceforth NO withdrawal request of allottees of Mohali (Sect-114) project will be entertained on any grounds.Update : Harbhajan Vihar (as on 23-04-18)
HANDING/ TAKING OVER SCHEDULE (BLOCK A, B, F, P & Q) OF MOHALI (SECT-114) PROJECT
Update : Harbhajan Vihar (as on 05-04-18)
AMENDMENT IN HANDING/ TAKING OVER SCHEDULE (BLOCK M & R) OF MOHALI (SECT-114) PROJECT
Update : Harbhajan Vihar (as on 08-03-18)
OPENING OF AWHO HOUSING PROJECT AT MOHALI (SECT-114) FOR CIVILIANS
Update : Harbhajan Vihar (as on 07-02-18)
HANDING/TAKING OVER SCHEDULE (M BLOCK) : MOHALI (SECTOR-114) PROJECT
Update : Harbhajan Vihar (as on 16-11-17)
AMENDMENT IN HANDING/ TAKING OVER SCHEDULE OF MOHALI (SECT-114) PROJECT
Update : Harbhajan Vihar (as on 03-11-17)
HANDING/ TAKING OVER OF MOHALI (SECT-114) PROJECT
1. Please refer to our handing/ taking over instructions for H, C, N, K & R Blocks.
2. A No of allottees of H, C, N, K & R Blocks have represented that the time given to them to pay the last instalment has been very short hence the management has given grace period of 30 days to the allottees of above blocks without levy of interest .
3. You are requested to pay the final instalment by the following dates :-
(a) Allottees of H, C & N Blocks - 30 Nov 2017.
(b) Allottees of K & R Blocks - 29 Dec 2017.
4. Allottees who have not yet remitted their final instalment are requested to remit the same at the earliest but not beyond the above dates. If the final payment is not received by above dates, allottees will forfeit 1% rebate for not making timely payment and interest will also be levied for delayed payment.
5. For info and necessary action of all affected allottees please.Update : Harbhajan Vihar (as on 27-10-17)
RERA Regn Number under PUNJAB RERA
Update : Harbhajan Vihar (as on 17-07-17)
OPENING OF AWHO HOUSING PROJECT AT MOHALI TO PMF PERS AND CIV PAID FROM DEF SERVICE ESTIMATES
Update : Harbhajan Vihar (as on 29-06-17)
HANDING TAKING OVER INSTRUCTIONS MOHALI (SECTOR-114) PROJECT
Update : Harbhajan Vihar (as on 28-06-17)OPENING OF AWHO HOUSING PROJECT AT MOHALI TO AIR FORCE, NAVY AND COAST GUARD PERS
Update : Harbhajan Vihar (as on 13-06-17)
Update : Harbhajan Vihar (as on 12-05-17)UPDATE : REDUCTION IN COST OF DUs
Update : Harbhajan Vihar (as on 12-04-17)ALLOTMENT OF ADDITIONAL DWELLING UNIT (DU) TO THE EXISTING ALLOTTEES IN THE SAME STATION/ PROJECT
Update : Harbhajan Vihar (as on 18-01-17)SALE OF UNSOLD DWELLING UNITS AT MOHALI (SECTOR-114)
Update : Harbhajan Vihar (as on 02-11-16)WAIVING OFF LOCK-IN PERIOD FOR SALE OF DWELLING UNITS
Pls refer to Para 80 to 84 of AWHO Master Brochure July 87 (amended upto Mar 2016).
The Lock-in period for sale of dwelling unit has been waived off by the Board of Management as a special case.
All other rules pertaining to disposal of property remain unchanged.
Update : Harbhajan Vihar (as on 20-10-16)
DRAW RESULT FOR ALLOTMENT OF ADDL PARKING
Draw for allotment of addl parking spaces for the allottees of Mohali (Sect-114) project was held on 18 Oct 2016.
The allottees can log in to AWHO website to view their draw results.
Update : Harbhajan Vihar (as on 29-06-16)
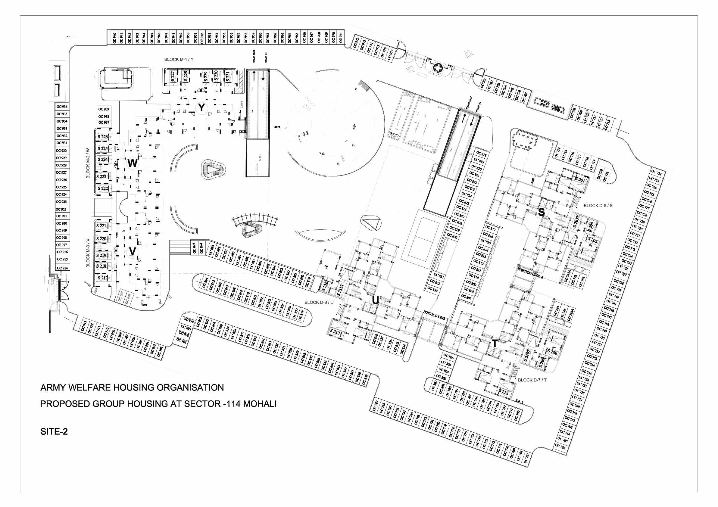
NUMBERING AND PARKING PLANS
With reference to AWHO letter (link below), pls note that due to increase in allottees for "Super Deluxe Penthouse", an additional SDA tower which was not being offered for draw, was offered in the specific DU draw scheduled on 23rd Jun 2016.
AMENDMENT IN OPTION LETTER FOR SPECIFIC FLOOR AND PARKING SPACE
Handing/taking over likely to commence wef Nov 2016.
Finishing works in progress. Pls see latest photographs.
MOHALI SEC-114 : PROJECT HIGHLIGHTS
